Bluebell Way, TN6
Price
Availability from
Type
Bedrooms
Bathrooms
Reception Rooms
Detached House
4
2
1
Resumen de propiedad
Todos los detalles
Ex-Show Home at Ashdown Gardens, Crowborough
Located within the sought-after Ashdown Gardens development, this former Linden Homes show home offers the perfect balance of contemporary living and countryside charm. the sought-after Ashdown Gardens development, this former Linden Homes show home offers the perfect balance of contemporary living and countryside charm.
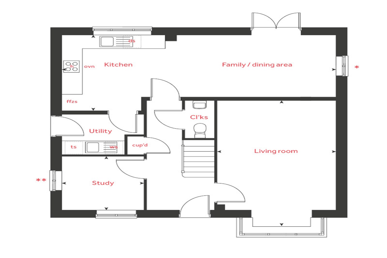
The Pembroke is a beautifully designed four-bedroom detached home featuring stylish upgrades throughout. The heart of the home is the open-plan kitchen and dining area, complete with high-spec finishes and French doors opening onto the garden - ideal for family living and entertaining alike. A separate living room provides a relaxing retreat, while a utility room, cloakroom and integral garage add practicality.
Upstairs, the home offers four spacious bedrooms, including a luxurious principal suite with en-suite shower room, a modern family bathroom, and ample storage.
Set within the peaceful surroundings of Crowborough, residents can enjoy easy access to local amenities, excellent schools, and scenic walks through the High Weald Area of Outstanding Natural Beauty - all just a short drive from Tunbridge Wells and within commuting distance of London.
Key features:
Former Linden Homes show home ¿ upgraded specification throughout
Four bedrooms, two bathrooms
Open-plan kitchen/dining area with French doors to garden
Garage and private driveway
Sought-after location on the edge of Ashdown Forest
Sold unfurnished
Location
Nearby Locations
Virtual Tour
No virtual tours available







